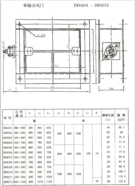
矩形风门(方风门)参数一

<strong>矩形风门</strong>(<strong>方风门</strong>)参数一